Contact
Site architect
Services
Profile
Projects
Residential / built
Residential / in progress
Multi residential / built / in progress
Commercial / built / in progress
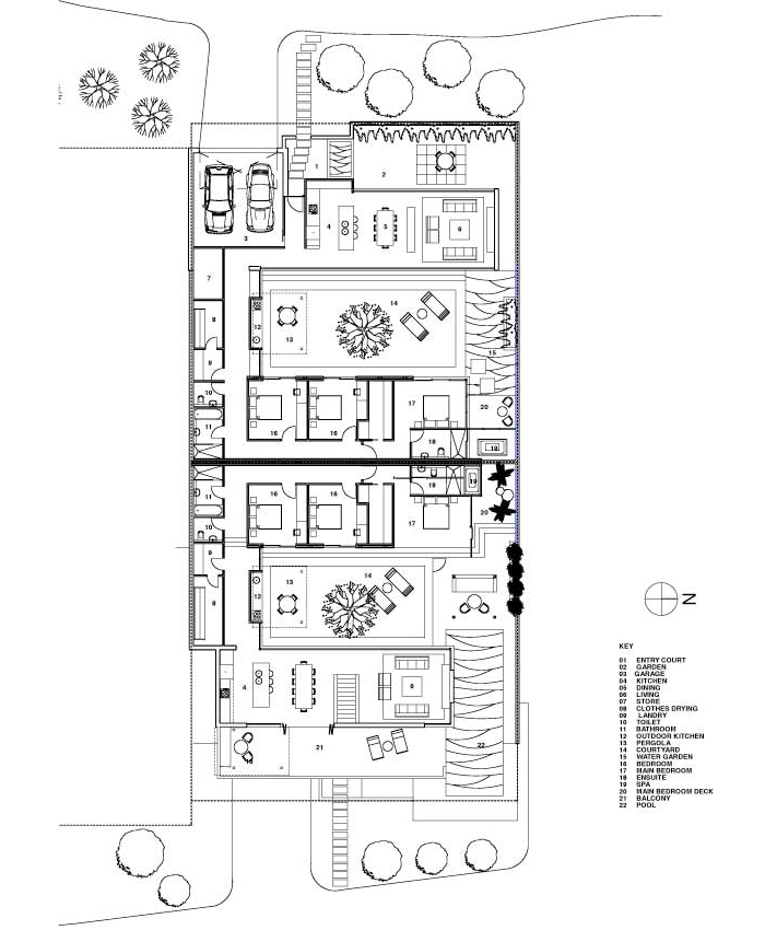
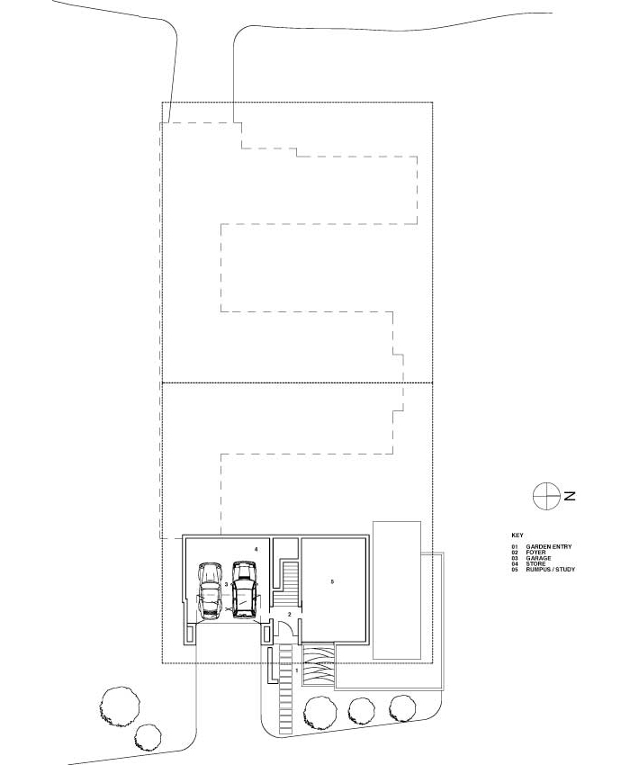
San Simeon estate villas
Location/ Sapphire Beach, Coffs Harbour
Type/ dual occupancy, new villas
Style/ contemporary courtyard
Click on thumbnail to view larger image / slideshow
l
© Copyright atelier 41 2013