Contact
Site architect
Services
Profile
Projects
Residential / built
Residential / in progress
Multi residential / built / in progress
Commercial / built / in progress
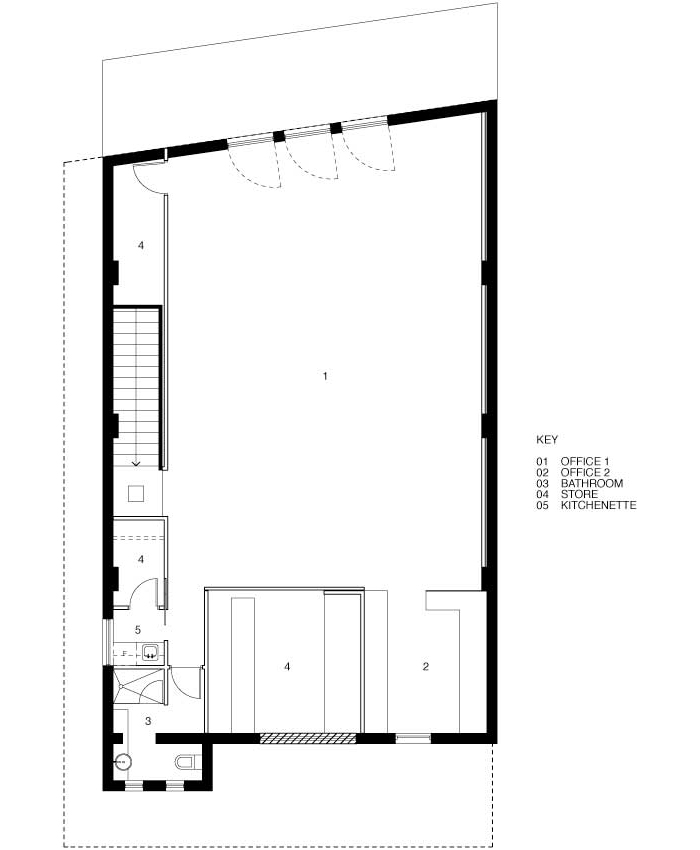
John Gordon gallery
Location/ Jetty, Coffs Harbour
Type/ new art gallery, bookshop and framing workshop
• More info >
Click on thumbnail to view larger image / slideshow
l
© Copyright atelier 41 2013