Contact
Site architect
Services
Profile
Projects
Residential / built
Residential / in progress
Multi residential / built / in progress
Commercial / built / in progress
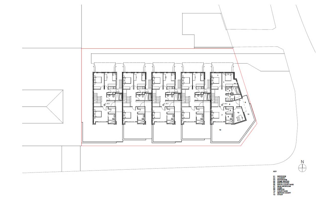
Jetty townhouses
Location/ Jetty, Coffs Harbour
Type/ 5 new townhouses
Style/ contemporary
Click on thumbnail to view larger image / slideshow
l
© Copyright atelier 41 2013